CAD Files

Resource Centre

  • By Product Profile

  • Bond - Apron Detail - Parallel Flashing
  • Bond - Apron Detail - Tranverse Flashing
  • Bond - Apron Detail - Tranverse Flashing Lead Edge
  • Bond - Change of Pitch Detail
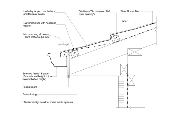
  • Bond - Fascia / Eave Detail
  • Bond - Gable / Barge Detail - Barrel Trim
  • Bond - Gable / Barge Detail - Barrel Trim - Metal Fascia
  • Bond - Gable / Barge Detail - No Trim - Metal Fascia
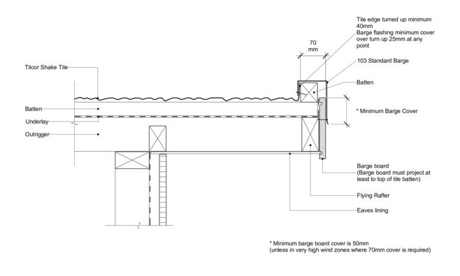
  • Bond - Gable / Barge Detail - Standard Trim
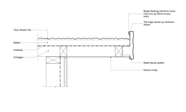
  • Bond - Gable / Barge Detail - Standard Trim - Metal Fascia
  • Bond - Gable / Barge Detail - V Ridge Trim
  • Bond - Gable / Barge Detail - V Ridge Trim - Metal Fascia
  • Bond - Ridge / Hip Detail - Barrel Trim
  • Bond - Ridge / Hip Detail - Standard Trim
  • Bond - Ridge / Hip Detail - Standard Trim Set Up
  • Bond - Ridge / Hip Detail - V Ridge Trim
  • Bond - Valley Detail
  • Bond - Wall to Roof Detail